6 Dingle Road, Bristol, City Of Bristol, BS9

£625,000

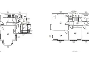
Property Summary

Detached house in need of modernisation plus plot of land
Opportunity to create amazing family home or potential to redevelop the site
Planning granted on whole site for demolition and redevelopment to 6 luxury apartments
Excellent location in-between Stoke Bishop and Coombe Dingle
Comprising
(A) House : £625,000
(B) Plot of land to the east of the main house : £75,000

  • Make Enquiry
  • View Brochure